Skip to content
inN arquitectura Logo inN arquitectura Logo
  • projects
  • the studio
  • centrífuga
  • contact
  • projects
  • the studio
  • centrífuga
  • contact
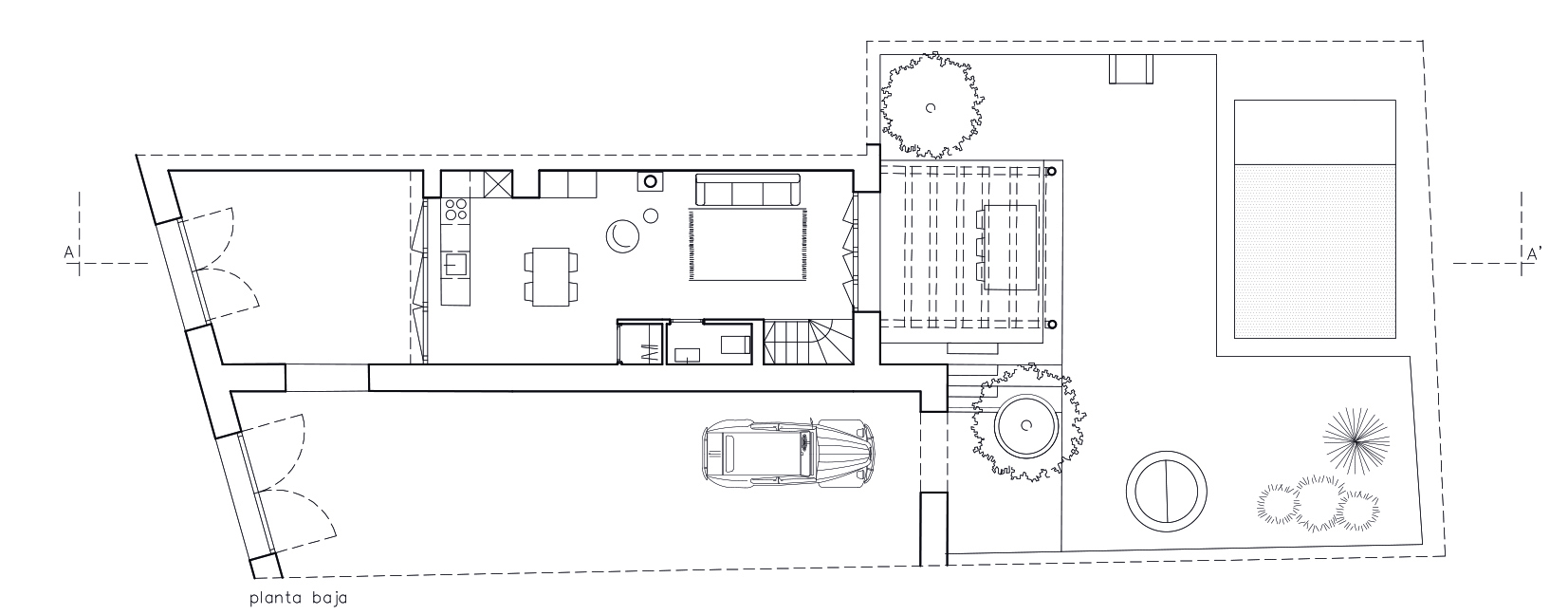
Modelo

inN arquitectura2025-07-30T09:50:10+00:00
Page load link

are you inN?

follow us on facebook, twitter and instragram or subscribe to our newsletter to find out the latest news

subscribe