Saltar al contenido
inN arquitectura Logo inN arquitectura Logo
  • el estudio
  • proyectos
  • centrífuga
  • contacto
  • el estudio
  • proyectos
  • centrífuga
  • contacto
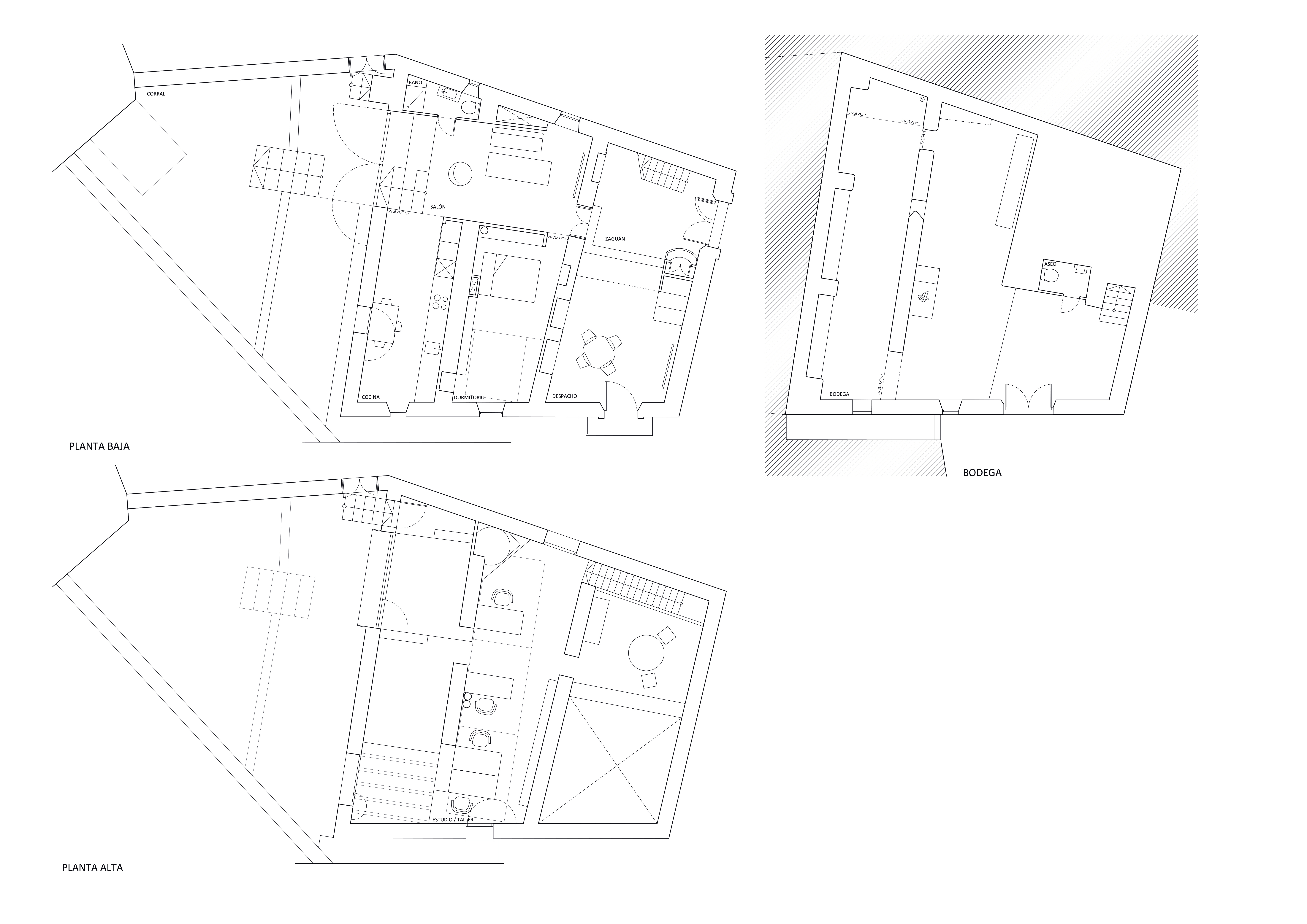
PLANTAS

inN arquitectura2023-05-14T15:02:36+00:00
Page load link

are you inN?

síguenos en facebook, twitter e instragram o suscríbete a nuestro boletín para conocer las últimas novedades

suscríbete