Saltar al contenido
inN arquitectura Logo inN arquitectura Logo
  • el estudio
  • proyectos
  • centrífuga
  • contacto
  • el estudio
  • proyectos
  • centrífuga
  • contacto
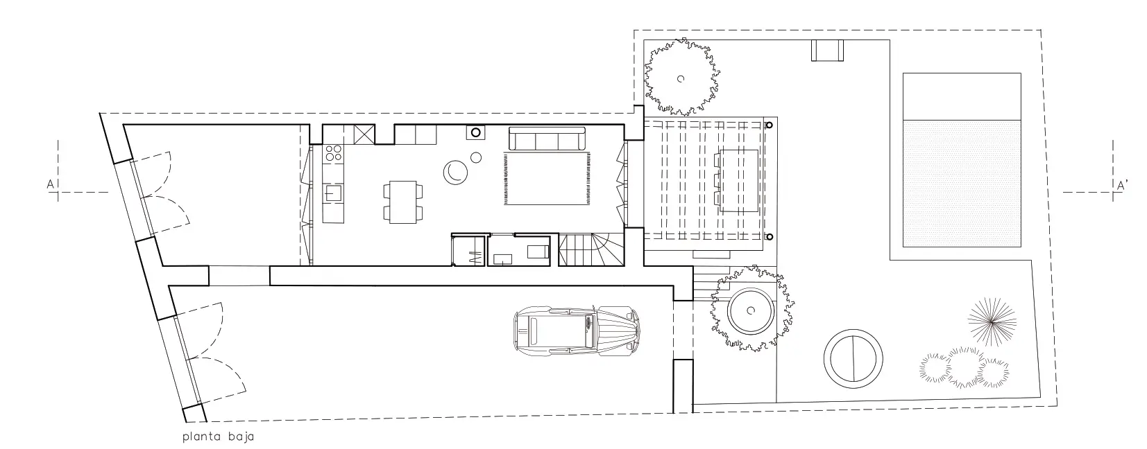
Modelo

inN arquitectura2025-08-05T17:31:48+00:00
Page load link

are you inN?

síguenos en facebook, twitter e instragram o suscríbete a nuestro boletín para conocer las últimas novedades

suscríbete